
Lichtkante Kudamm
Located on Berlin’s Kurfürstendamm, Lichtkante Kudamm occupies a pivotal site between a Wilhelmina-era landmark and a modernist neighbor. The existing 1980s hotel lacks the vertical rhythm and sculptural depth of the boulevard. The proposal reinstates this lost clarity, reinterpreting the former neo-Renaissance presence as a contemporary, high-performance office building that unites heritage, sustainability, and innovation.
- Location
- Berlin, Germany
- Status
- Competition
- Year
- 2025–2025
- Surface
- 8300 m²
- Client
- Undisclosed
- Themes
- Architecture, Mixed use, Transformations
- Certifications
- DGNB Platinum
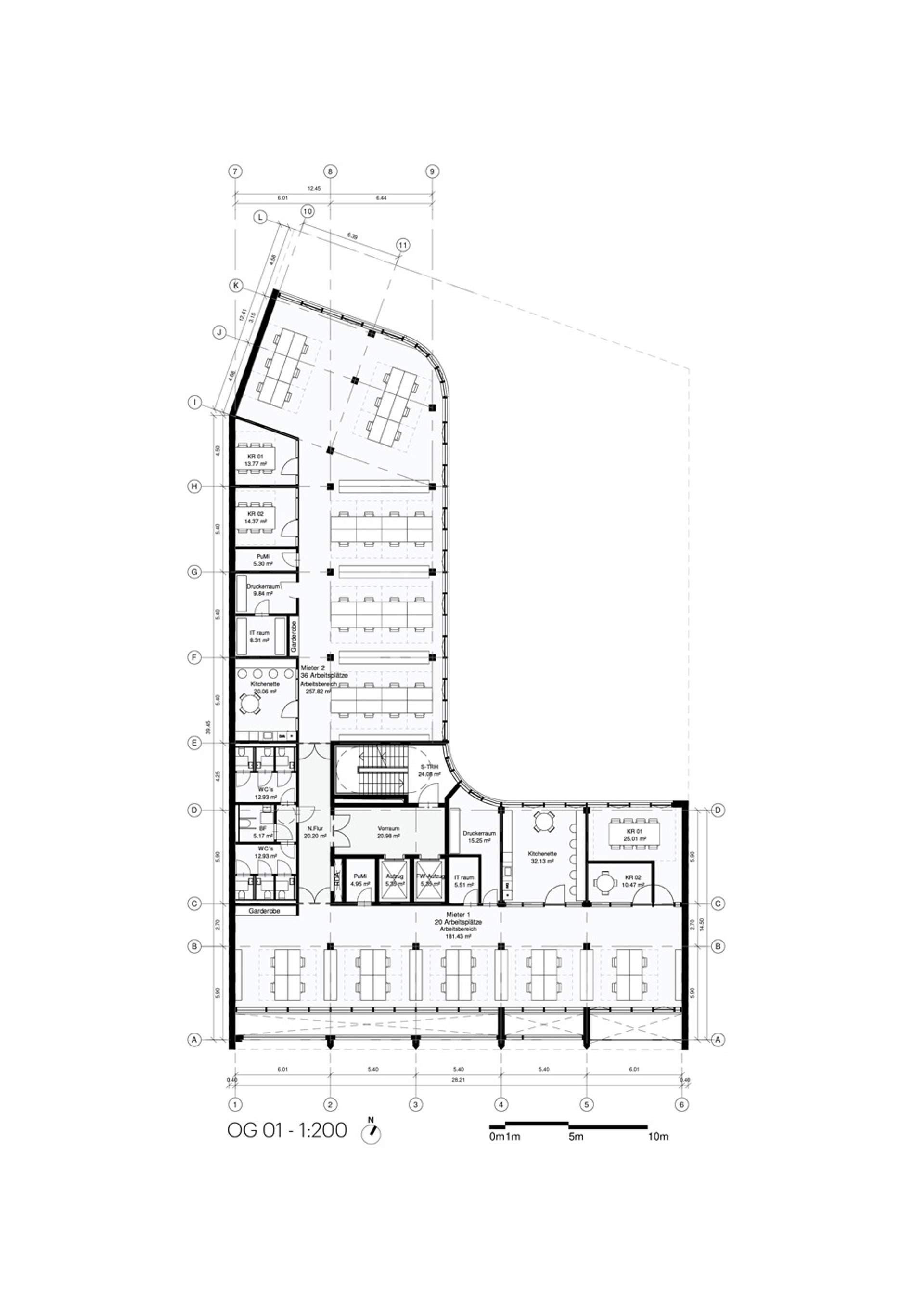
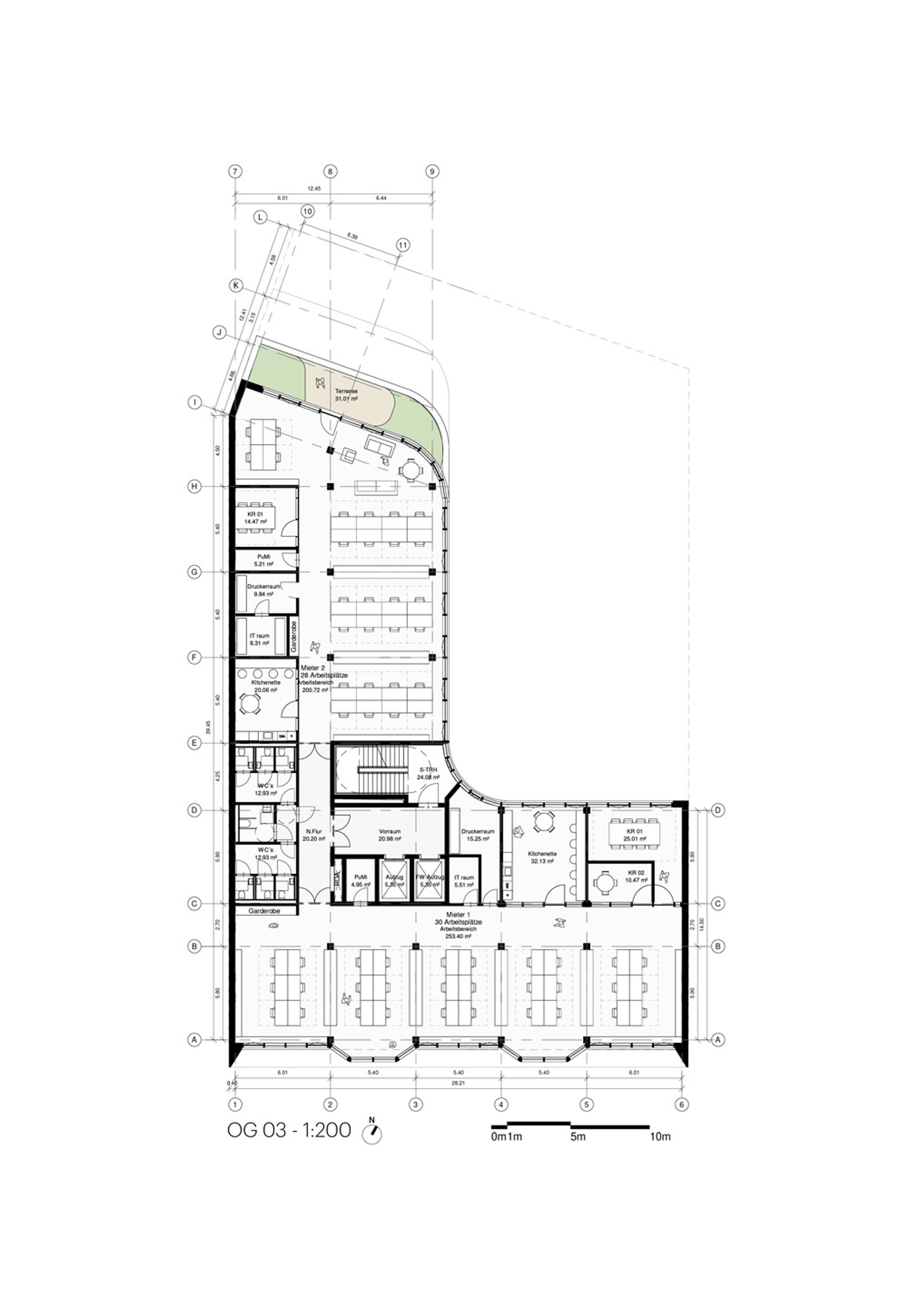
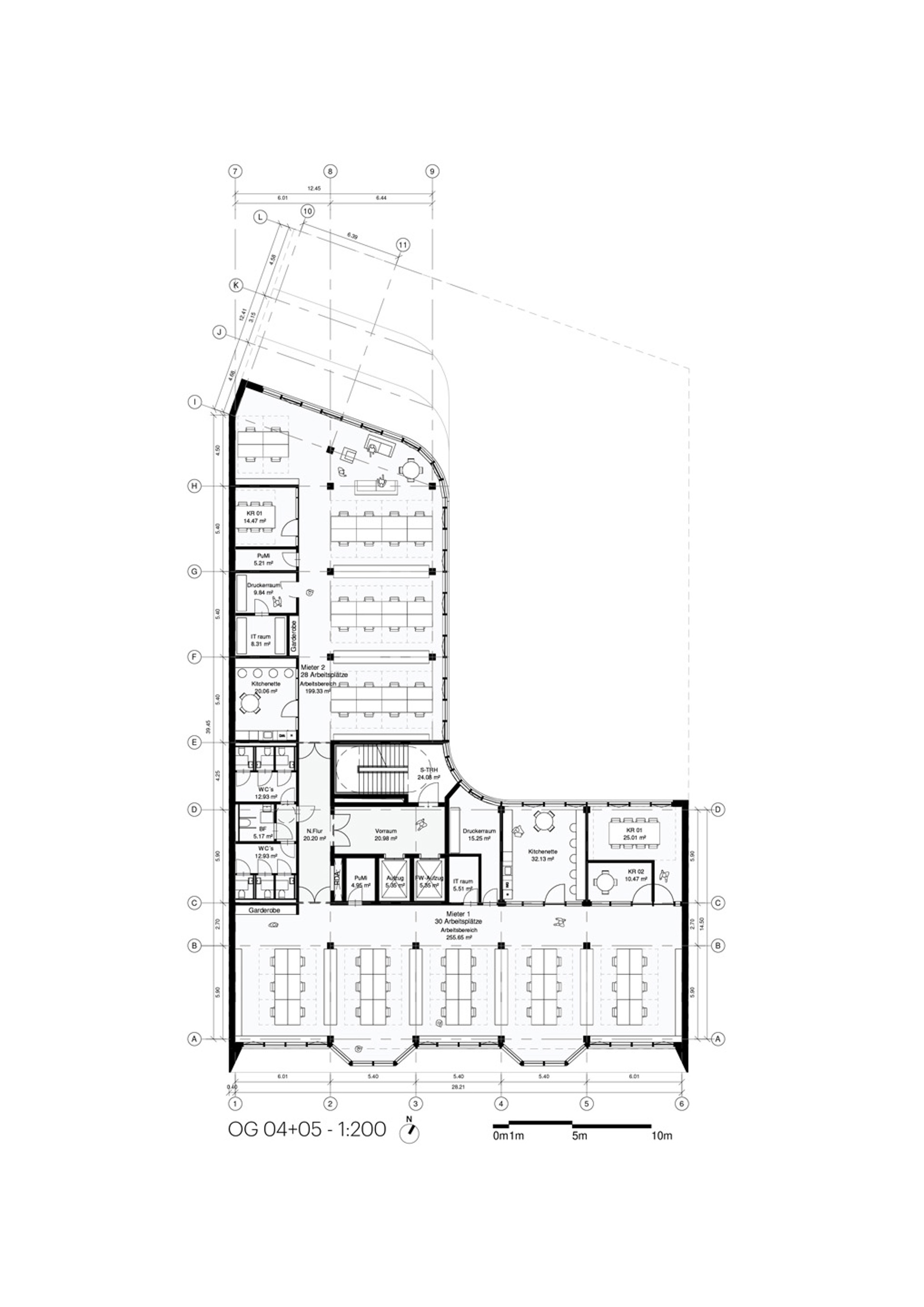
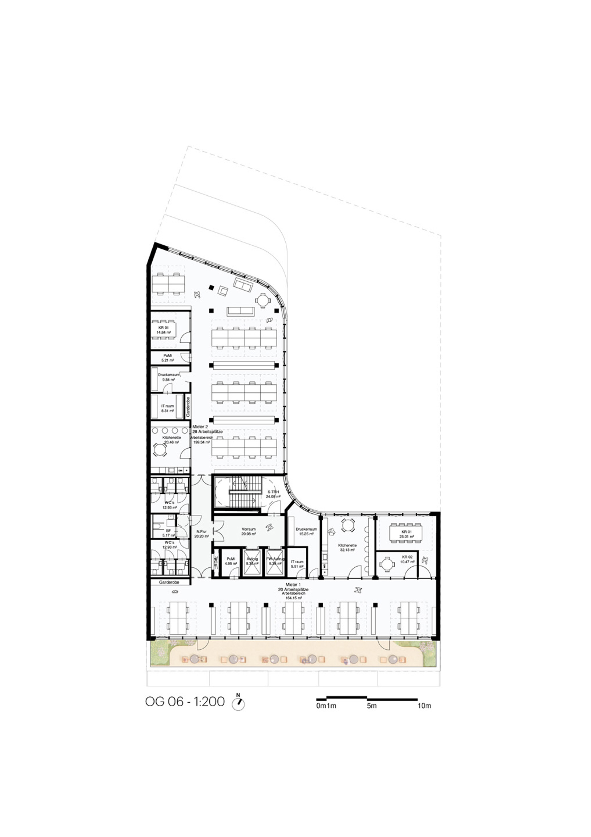
The design re-establishes the typical three-way order of the boulevard: a robust base, a sculpted middle section, and a lightweight crown that anchors the building in its urban profile. At street level, a porous and open ground floor links the boulevard to the reactivated courtyard, bringing daylight deep into the plot and creating visual continuity across the site. The project embodies a balance between contextual respect and progressive design, translating Berlin’s layered architectural history into a new, performative expression.
Retaining a substantial portion of the existing concrete structure and combining it with a hybrid timber-concrete system significantly reduces embodied carbon while accelerating construction. Thermally activated slabs and reversible heat pumps provide efficient heating and cooling, complimented by decentralised ventilation that reduces operational energy and enhances user comfort. Together, these measures target DGNB Platinum certification and full alignment with EU Taxonomy and ESG goals.
The hybrid slab system—combining prefabricated concrete elements with timber beams—achieves both structural performance and ecological efficiency. Integrated thermal activation enables the slabs to store and release heat, reduces heating demand by 60% and cooling demand by 50% compared to conventional construction. Timber elements function as both structure and carbon sink, creating a lighter, faster, and more economical building process.
Material reuse shapes the identity of the façade, with reclaimed travertine panels, recycled aluminium, and glass elements are reinterpreted alongside coloured photovoltaic modules that transform the envelope into an energy-producing surface. The façade’s depth responds to solar orientation: deeper horizontal fins in sun-exposed zones integrate planters, extending greenery upwards from courtyard to roof terrace, reinforcing the building’s biophilic quality.
The roof culminates in a solar canopy that continues the architectural language upward, creating a shaded communal terrace. Together, greenery, efficient energy systems, and recycled materials form a holistic architectural ecology in which aesthetics and performance are inseparable.
Gallery















Credits
- Architect
- Founding Partner in charge
- Director
- Design Team
- Visualisation
- Physical model
- Partners
- Landscape architect:
- Topotek1
- Facade Specialist:
- Priedeman
- Structural engineer:
- Kevee
- Timber engineer:
- Kevee
- MEP:
- Transsolar
- Cost calculation:
- Transsolar
- Building physics:
- Transsolar
- Environmental advisor :
- Transsolar