
The Resilient Campus
How can we update the classical American university campus, typically designed following the principle of man-made-order, for a new era of resilience and harmony with nature? In the Resilient Campus Competition, organised by the University at Buffalo’s School of Architecture and Planning, MVRDV proposed a data-driven approach that bridges the gap between in-depth site analysis, forecasts of future challenges, and strategic decision-making by campus stakeholders.
- Location
- Buffalo, United States
- Status
- Design
- Year
- 2025–2026
- Surface
- 621000 m²
- Client
- University at Buffalo
- Programmes
- Educational, Research, Master plan
- Themes
- Sustainability, Research, Urbanism, NEXT
The Resilient Campus Competition asked entrants to envision future scenarios for the University at Buffalo’s South Campus, outlining strategies that would allow the campus to absorb and adapt to the likely challenges of the future, from climate change to demographic shifts. With scenarios presented for two time periods, 2050 and 2080, the brief thus invited designers to show the potential evolution of the campus as the 21st century unfolds. In addition, the competition asked for architectural proposals for two buildings – a transformation of the existing Health Sciences Complex and a newly built University-Assisted Public School – allowing the designers to zoom in on how changes to the campus will unfold on a tangible human scale.
In their response to this brief, MVRDV and RIOS developed a data-based methodology that would allow them to ensure proposals respond to real conditions rather than abstract assumptions. The process involved first collecting a wide variety of site analyses – including technical aspects of the campus such as wind and sunlight patterns, hydrology, ground elevation, and vegetation, but also qualitative analyses contributed by the team’s student assistants, who investigated topics such as where people congregate, which routes they use to move around, and how these patterns change across seasons. These layers of analysis were mapped onto a coordinate system to create a digital spatial model of the current conditions at every location on the campus.
The next element of the methodology is the resilience matrix, which allows the designers to map out future scenarios. From increased frequency of heatwaves and snowstorms, to economic recession, to demographic changes, the predictions made for a given time in the future feed into priority sliders for the campus: whether the design should focus on topics such as ecology, hydrology, flexibility, accessibility, self-sufficiency, and more. Finally, these priorities are linked to a catalogue of design features that improve various aspects of resilience, with design recommendations overlaid onto the coordinates of the map by an algorithm known as the Weighted Adaptive Transformation Tool (WATT) depending on the potentials identified in the site analyses – thus connecting global challenges to local conditions.
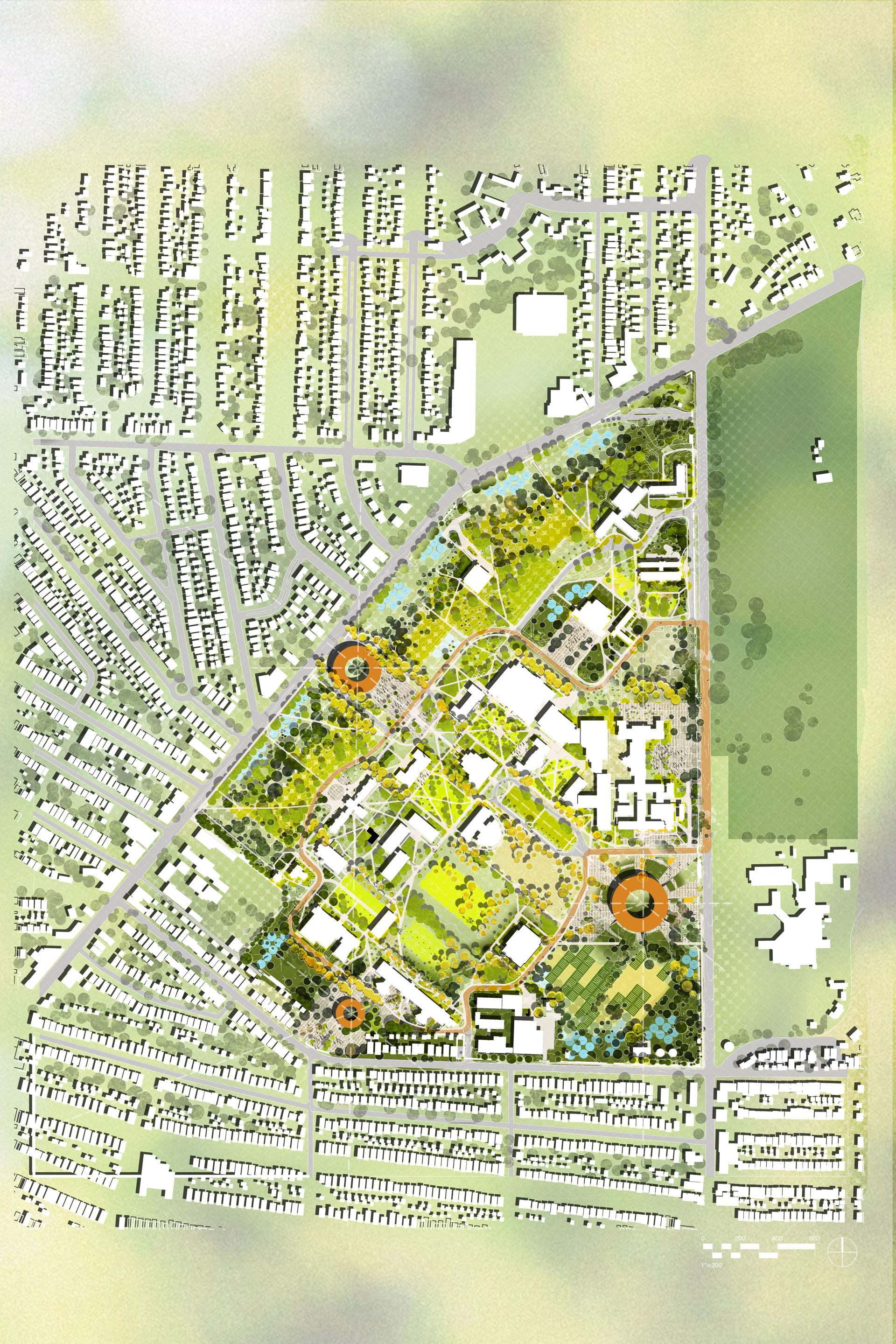
In the 2050 scenario, the team’s prediction of extreme climate effects, combined with climate migration, gave maximum priority to climatic, hydrological, and ecological adaptation, with high emphasis also placed on flexibility, accessibility, and inclusivity. This resulted in interventions including water retention basins along the low-lying eastern limits of the campus, and tree rows that add to biodiversity and serve as natural snow fences during winter. A looping path connects the entire campus as a primary mobility route, connecting a variety of hubs that serve the campus’s many users, from students to neighbourhood residents.
In 2080, many of the scenario predictions are intensified, leading to a more prominent role for the elements such as water retention basins that already arose in 2050. Buffalo’s expanding population, driven by climate migration, is accommodated in new structures that infill some of the campus’s less productive spaces, with a web of new paths contributing to increased interconnectivity. In the 30 years since 2050, new challenges also loom: food and resource shortages greatly increase the priority given to self-sufficiency and circularity, and the campus responds with areas for food production, and flexible, efficient, and demountable building designs.
In order to expand the potential of their methodology, the team developed an AI-powered tool that would allow people to create their own scenarios for the future. Using the same priority sliders that fed into the design scenarios, users can instantly create new visualisations of the campus that respond to different urgencies.
At the scale of individual buildings, the design team proposed to adapt the Health Sciences Complex, clarifying its layout while maintaining the existing structure. A series of atriums are carved into the building at strategic locations, creating vibrant social spaces, while flexible classrooms are designed to pivot to become emergency support hubs when required, embedding civic resilience into the campus fabric. A lightweight, modular timber roof extension is proposed as a way to expand the existing building without encroaching upon the campus landscape and without requiring reinforcement of the existing structure, thus providing a low-impact approach to increase the building’s capacity for the coming decades.
The new building for the university-assisted public school, meanwhile, is envisioned as a way to integrate the university with the broader community, strengthening community-based resilience. The circular building has a welcoming ground floor, set into the landscape yet porous and open to its surroundings, with a central courtyard that functions as a communal gathering space. The flexible and demountable mass timber design, along with renewable energy generation, ensures that the building is low-impact and contributes to the self-sufficiency of the campus.
Gallery
University at Buffalo South Campus in 2050
University at Buffalo South Campus in 2080
University at Buffalo South Campus in 2050
University at Buffalo South Campus in 2080
Site Analysis: Summary
Site analysis: Open Space
Site analysis: Climate and seasonal usage
Site analysis: Wind
Site analysis: Water runoff
Site analysis: Habitat value
Site analysis: Resource distribution
Site analysis: Social activity
Site analysis: Urban integration
Methodology: The resiliency matrix
Methodology: The catalogue of interventions
2050 Masterplan
2050 Overview
2050: Open space
2050: Wind
2050: Water
2050: Habitat
2080 Masterplan
2080 overview
2080: Open space
2080: Wind
2080: Water
2080: Habitat
HSC Transformation steps
HSC Sustainability features
HSC Building
HSC Building
HSC Building
HSC Building
HSC Building
HSC Building
UACS sustainability features
UACS building
UACS building
UACS building
UACS building
UACS building










































Credits
- Architect
- Founding partner in charge
- Partner
- Director MVRDV New York
- Director MVRDV NEXT
- Design team
